|

|
|
|
bref historique |
|
|
|
|
Sur cette photo,
datant de l'été 1938, on voit Mme Guillemineau, une des
lavandières de St Léger, travaillant sur le
bateau-lavoir.
Entièrement en bois, on y accédait par une passerelle.
Deux ancres le stabilisaient et il était mobile. Placé
perpendiculairement à la route du Pontreau, il était
séparé par une cloison en bois en 2 compartiments qui
communiquaient par une porte. De chaque côté, on pouvait
travailler à 8. Le toit était en ardoise. On le
déplaçait vers la berge pour les réparations,
nombreuses.
"En ce temps-là, la baignade n'était pas interdite Les plongeurs sautaient tout près du bateau amarré, passaient en-dessous, nageaient et prenaient du bon temps. Ce jour-là, les lavandières "cassaient du sucre sur le dos" d'une personne qu'un petit nageur à l'oreille aiguisée aimait bien. Avec ses copains, discrètement, il détacha les chaînes du bateau et enleva la passerelle Les lavandières, tout occupées à médire (et à travailler) ne s'aperçurent pas que le bateau dérivait, et grande fut la surprise de celle qui voulut la première sortir sa brouette de linge ! Les garnements, pas peu fiers de cette petite leçon, ramenèrent en nageant le bateau près de la berge. "Au lavoir, on lavait le linge et on salissait les gens", dit-on. Aujourd'hui, il n'y a plus de lavoir, mais "
|
les Amis de Léo reconstruisent le bateau-lavoir |

|
|

|
|

|
|

|
|
|
la souscription |
La Fondation du Patrimoine s'est associée à la restitution du bateau-lavoir de Saint-Léger-sous-Cholet en mobilisant le mécénat de particuliers et d'entreprises.
L'un des buts de l'association locale des Amis de Léo est de promouvoir le patrimoine local à travers sa mémoire et la remise en état de son patrimoine.
Notre projet consiste en la re-construction du bateau-lavoir qui a flotté sur l'étang communal pendant plus d'un demi-siècle. Indispensable à la population et véritable petit journal local, il pouvait abriter seize lavandières dont les langues allaient bon train !
Il est remarquable qu'on ne trouve
aucune trace de ce type de bateau-lavoir, ni dans notre Maine et
Loire, ni même en France.
Faire revivre ce patrimoine d'exception, c'est faire revivre le
passé d'avant l'arrivée des machines à laver.
Fidèles à leur mission, les Amis de Léo souhaitent, en reconstruisant ce bateau disparu de notre étang, faire découvrir les moyens de lavage d'autrefois et voyager le public dans le temps, à l'époque où les femmes qui battaient leur linge chuchotaient les joies, les peines et les secrets du bourg.

|
6 novembre 2017 |
|
|
étanchéité de la partie immergée
|
|
|

|
22 novembre 2017 |
|
|
poursuite de
l'étanchéité de la partie immergée
pose d'une bande de feutre bitumeux recouvert d'un feuillard
zingué clouté tous les centinmètres de chaque
côté, ce qui a nécessité 25 000 pointes,
soit environ 125 000 coups de marteau, la plupart bien
placés


|
5 avril 2018 |

assemblage du
premier plancher et des bords remontants (40 cm) - le tout en bois de
chêne est goudronné
la ligne de flottaison se situera à plus ou moins 20
cm


|
31 mai 2018 |

|
|


|
|





toute la partie
immergée a été renversée afin d'y coller
plus tard 2 couches superposées de membranes
caoutchoutées et d'éviter ainsi un entretien trop
contraignant dans le temps
il s'agit de parfaire l'étanchéité
!
|
11 juin 2018 |
|
c'est aujourd'hui
la pose des membranes caoutchoutées
pour assurer l'assemblage du tout, il a été auparavant
utilisé 1400 tire-fonds, dont chaque tête a
été étanchéifiée avec un joint
colle
|
|
|

|
|


|
20 juin 2018 |
c'est la livraison des poteaux de charpente

|
|
|
|
25 juin 2018 |
2e retournement du futur bateau, qui va se retrouver désormais dans sa position initiale, c'est-à-dire sa position finale, prêt à recevoir l'habitacle

|
|

|
|
|
|
|
|
|
|
|
|
|
|


|
|

|
|
|

|
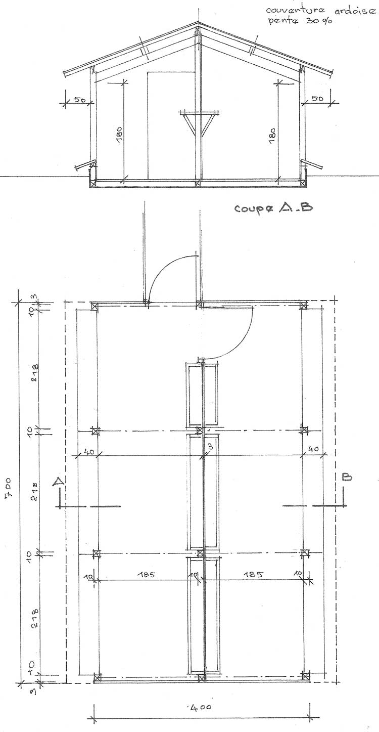
27 juin 2018 |
construction de la
charpente
le chantier se situe dans le vieux bourg, accessible par la rue des
Charpentiers, sur un terrain appartenant aux descendants de la
famille Péault-Brin, à l'ombre de l'ancien
presbytère
il sera ouvert le dimanche 16 septembre prochain, de 9h30 à
12h, lors de la Journée du Patrimoine - une collection sur la
lessive sera également visible
|
|
|





|
|
|
|

|
fautes de frappe : Janny est née en 1927 - pour un agrandissement cliquez ici |
|
16 septembre 2018 |



|
|




|
|
|
24 octobre 2018 |
|
|



|
|
|
|
|
|
|






|
|
|
20 novembre 2018 |
|
|
|
|
|


|
23 novembre 2018 |
|
|

|
|
|
|
|

C'est aujourd'hui 7
février 2019 que Maurice nous a quittés. Maurice
était un érudit, un curieux, un grand
travailleur, un coquin aussi, un ami. Christophe
De bon matin, il a refermé son parapluie, sachant
sans doute que la journée allait être
ensoleillée.

Il s'est dévoué au service de la famille des
St Léger, qui lui importait infiniment.
Il me parlait hier soir encore du Rassemblement ici en
2021.
Repose-toi bien, copain ! Tu as donné.
|
18 mai 2020 |
|
|
|
|
le déconfinement date du lundi 11 mai - aussi chacun porte-t-il son masque |
|
|
|


|
|

|
|
|
|
|
|
|
|

|
|
|
coulera |
|
Merci de fermer l'agrandissement sinon.